Planta Concretera BF-75

Somos una empresa dedicada al diseño, desarrollo y fabricación de plantas dosificadoras de concreto desarrolladas bajo altos estándares internacionales de calidad.

Enviar Mensaje
Ficha técnica

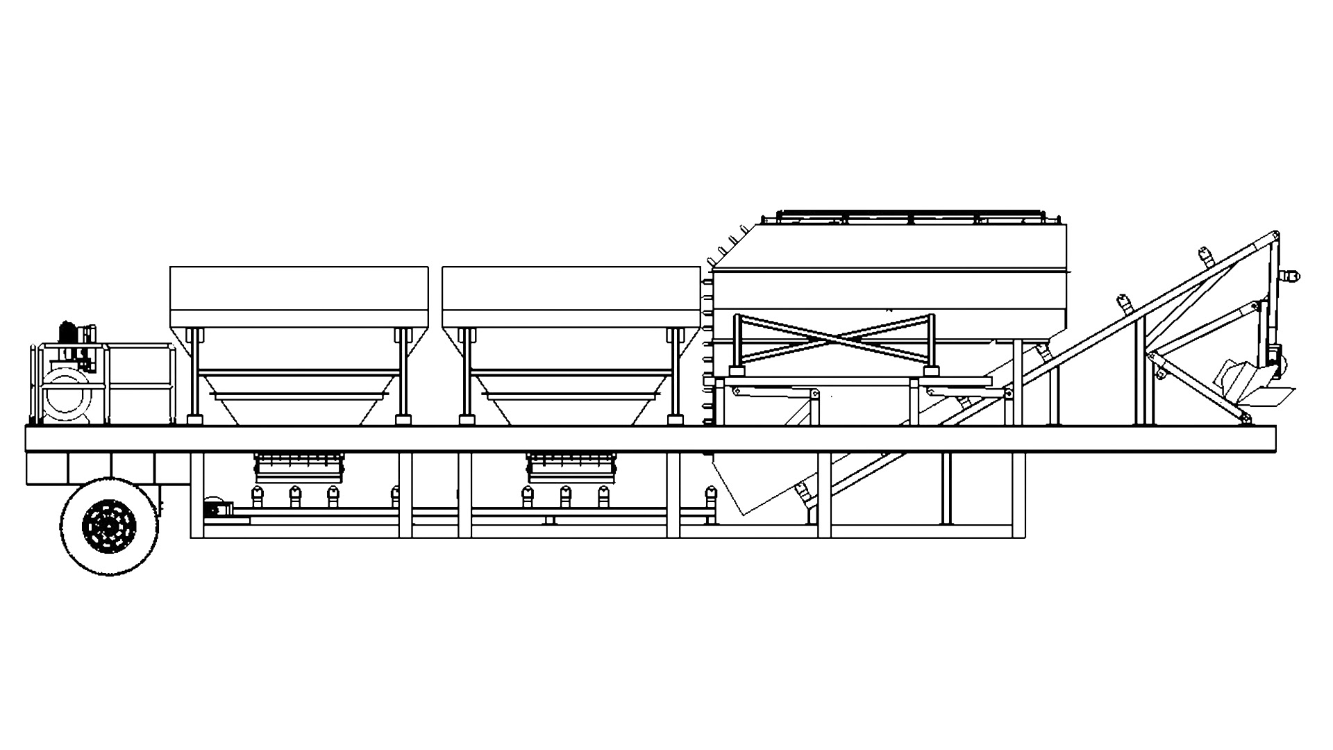
Planta dosificadora ultra móvil, ideal para grandes obras de mediano plazo de duración. Este equipo, todo en uno, es fácil de transportar, gracias a su sistema de desplegado; en 20 min está listo para cambiar de locación sin necesidad de uso de grúas.

Incluye 2 tolvas dosificadoras de 10 m3, silo de cemento incorporado de 30 ton con dosificación por medio de 2 transportadores helicoidales y banda transportadora de 30”. Produce de 75 – 100 m3/h.

  • Tolvas dosificadoras: 10 m3 con compuerta tipo almeja
  • Banda transportadora de 24” a 30” según elección
  • Barco acumulativo: 15 m3
  • Bomba de agua de 3” 7.5 HP
  • Compresor de aire de 10 HP
PRODUCCIÓN POR HORA 75 - 100 m3/h
NÚMERO DE AGREGADOS 2
ALMACÉN DE AGREGADOS Disponible
BÁSCULA DE AGREGADOS 2 de 11 m3
BÁSCULA DE CEMENTO 30 ton
SILO PARA CEMENTO Integrado de 30 ton
AUTOMATIZACIÓN Disponible
MAYOR CAPACIDAD Disponible
Galería
Contacto